アーバンホームズの物件詳細情報-お気軽にお問合せください!
情報更新日:2026-02-17
| 所在地 | 間取 | 月額賃料 | 専有面積 バルコニー面積 |
共益費 管理費 |
敷金 礼金 |
|---|---|---|---|---|---|
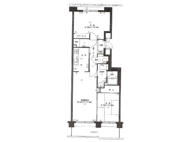
| 青森県 青森市 松原3-15-25 | 2LDK | 78,000円/月 |
67.05㎡ 3.16㎡ |
─ ─ |
2ヶ月 156,000円 ─ |
松原の2LDKマンションです!生協あじさい館まで徒歩5分!
本物件の内容や画像等は全て現況優先とさせていただきます。各画像は参考図となります。
![]() |
![]() |
| 交通機関 | バス 松原3丁目 徒歩4分 | ||
|---|---|---|---|
| 学区 | 堤小学校(0.8km)・浦町中学校(0.6km) | ||
| 詳細間取 | 2LDK (洋8.5帖×1、和6帖×1、LDK11.4帖) | ||
| 周辺施設 | 生協あじさい館:400m、市民病院:1100m、NHK青森放送局:1300m | ||
| 駐車場 | 敷地内 無料 | 建物構造 | RC造 地上10階建 |
| 駐車場複数台 | 不可 | 主要採光方向 | 不明 |
| 仲介料 | 85,800円 | 周辺環境 | |
| 保険又は共済 | 要加入 | 入居可能日 | 2025/10/上旬 |
| 保証金 | 築年月 | 平成10年10月 | |
| 権利金 | 取引態様 | 仲介 | |
| 保証会社 | |||
| その他費用 | |||
| トイレ | 洋式 独立 水洗 | 風呂 | 有 シャワー有 給湯式 |
| 設備 | 上水道設備(公営) 下水道設備 給湯(ガス) 洗面化粧台(独立) 都市ガス インターホン エアコン ガスストーブ バルコニー エレベーター クローゼット 瞬間湯沸器 | ||
| 備考 | 保証会社利用必須(毎月引落し手数料330円) 普通賃貸借 ※同業他社による客付け可(手数料割合:自社50%/他社50%) | ||
| 取扱業者 |
㈱ アーバンホームズ 青森県知事免許(13)第1261号 青森県青森市長島4丁目23-14 TEL:017-734-4141 FAX:017-734-7159 (公社)青森県宅地建物取引業協会会員 東北地区不動産公正取引協議会加盟事業者 |
||