アーバンホームズの物件詳細情報-お気軽にお問合せください!
情報更新日:2026-05-21
| 所在地 | 間取 | 月額賃料 | 専有面積 バルコニー面積 |
共益費 管理費 |
敷金 礼金 |
|---|---|---|---|---|---|
| 青森県 青森市 本町1-3-12 | 150,000円(税込)/月 |
108.02㎡ ─ |
─ 50,000円/月 |
3ヶ月 450,000円 ─ |
市役所本庁舎向かい国道沿いの8階建てビル、32.67坪の貸事務所!
本物件の内容や画像等は全て現況優先とさせていただきます。各画像は参考図となります。
![]() |
![]() |
| 交通機関 |
青い森鉄道 青森駅 徒歩19分 バス 市役所前徒歩1分 |
||
|---|---|---|---|
| 学区 | |||
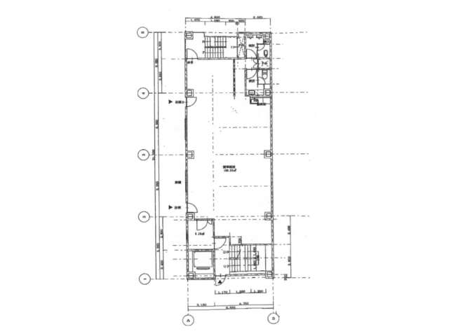
| 詳細間取 | |||
| 周辺施設 | |||
| 駐車場 | 駐車スペースなし | 建物構造 | RC造 地上8階建 |
| 駐車場複数台 | 不可 | 主要採光方向 | 南 |
| 仲介料 | 150,000円 (1ヶ月相当) | 周辺環境 | |
| 保険又は共済 | 要加入 | 入居可能日 | 即入居可 |
| 保証金 | 築年月 | 昭和53年1月 | |
| 権利金 | 取引態様 | 仲介 | |
| 保証会社 | |||
| その他費用 | |||
| トイレ | 洋式 独立 水洗 | 風呂 | 無 |
| 設備 | 上水道設備(公営) 下水道設備 給湯 LPガス 照明器具 エレベーター | ||
| 備考 | 空調設備は入居者負担にて設置のこと、4・5F空室有り 事務所可 普通賃貸借 ※同業他社による客付け可 | ||
| 取扱業者 |
㈱ アーバンホームズ 青森県知事免許(13)第1261号 青森県青森市長島4丁目23-14 TEL:017-734-4141 FAX:017-734-7159 (公社)青森県宅地建物取引業協会会員 東北地区不動産公正取引協議会加盟事業者 |
||